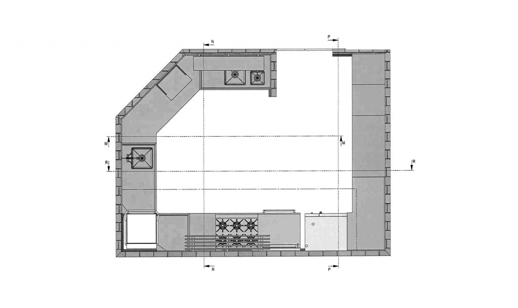
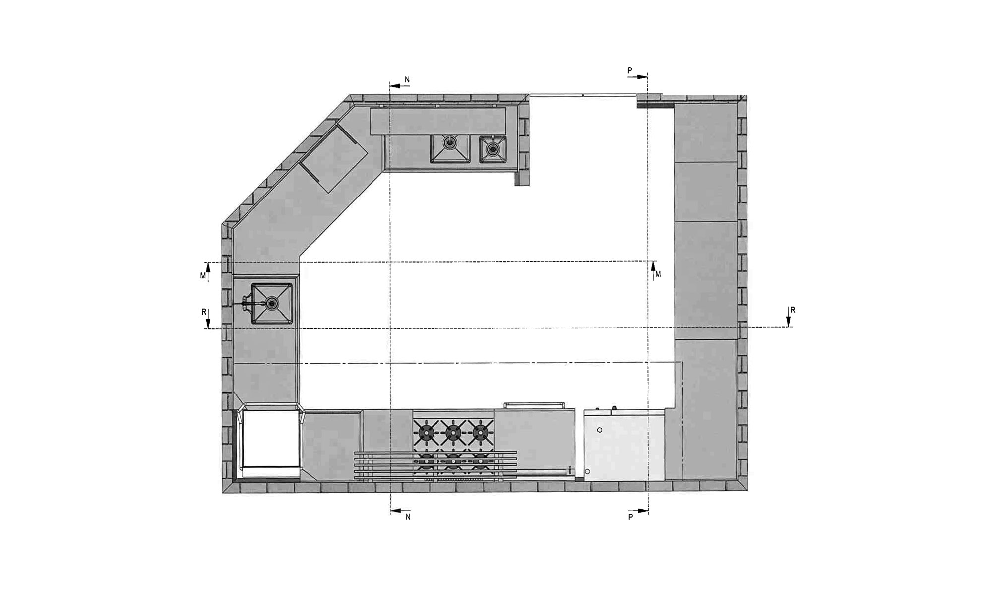
We are thrilled to be working with the City of Melbourne on a Kitchen Refurbishment project.

After years of planning and months of designing, we will be upgrading to a new state-of-the -art commercial kitchen that will replace the existing domestic kitchen.

The City of Melbourne have committed to a budget  of over $60,000 to KCCC for the kitchen upgrade.

This will enable us to accommodate the on-site preparation of nutritious and tasty meals for our 140 children each day. The upgraded facility will include large scan pans and large ovens, which will enable opportunities for new recipes and the roll out of our revised menu.